- Our Services -
Our services are tailored around the client’s needs and the project requirements to ensure we offer the appropriate level of support, professional leadership and coordination during the design and construction process.
Introduction Consultation
A consultation on the proposed site so as to better understand the project requirements and how we can assist.
Feasibility and Site Appraisal
At this stage we shall assist the client to identify their key project objectives. This helps us define 'the project brief’.
Outline and Concept Design
In response to your requirements and the site conditions, we shall explore options and prepare an outline design.
Developed Design and Planning
We shall develop the design in detail at this stage.
Detail Design and Building Regulations
Once the development control approval is obtained, it is generally preferred to develop the detail design and address the building control legislation.
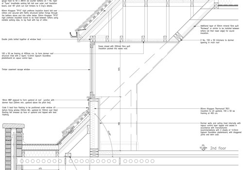
Technical Design and Construction Information
Preparing the additional technical designs that include all architectural, structural and mechanical services information and specification.
Managed Tender Process
Lindley Architects are able to coordinate the tendering process on your behalf if required.
Construction and Siteworks
Lindley Architects are able to assist during the construction and site works stage as required.
Developers and Design & Build
Lindley Architects are experienced at providing architectural services to developers across London and the South East.








