Private Client
Refurbishment & Extension + Heritage + Residential
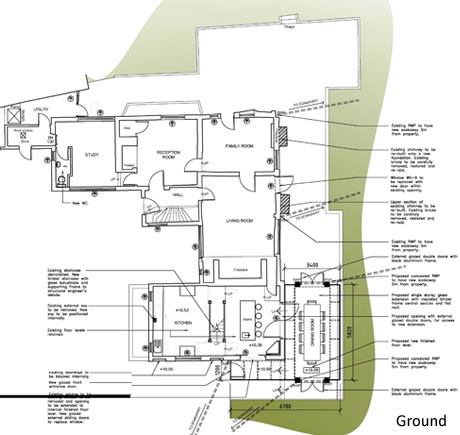
This exiting property dates from the thirteenth century with many original features characterised by the brick and timber construction and the Grade II listing. The proposals have sympathetically transformed the property into a modern family home whilst retaining the heritage quality of the original farm house. The internal arrangement was reconfigured to improve accessibility and functionality of the space. A new contemporary ‘glass house’ extension opens the home to the garden and to daylight.
Refurbishment & Extension + Heritage + Residential
This exiting property dates from the thirteenth century with many original features characterised by the brick and timber construction and the Grade II listing. The proposals have sympathetically transformed the property into a modern family home whilst retaining the heritage quality of the original farm house. The internal arrangement was reconfigured to improve accessibility and functionality of the space. A new contemporary ‘glass house’ extension opens the home to the garden and to daylight.
Private Client
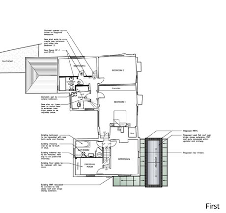
Refurbishment & Extension + Heritage + Residential
This exiting property dates from the thirteenth century with many original features characterised by the brick and timber construction and the Grade II listing. The proposals have sympathetically transformed the property into a modern family home whilst retaining the heritage quality of the original farm house. The internal arrangement was reconfigured to improve accessibility and functionality of the space. A new contemporary ‘glass house’ extension opens the home to the garden and to daylight.






































