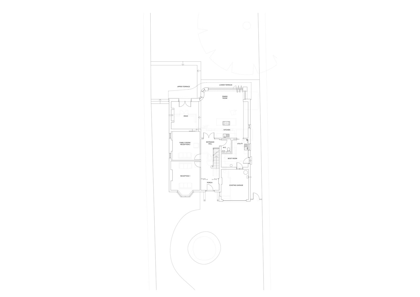
Full architecture services from concept design, obtaining the necessary planning permission, developing the technical design and maintaining quality of workmanship through construction process on site. Reconfiguration of internal arrangement and external appearance to Edwardian dwelling. Retaining the character of the original property to the front whilst responding to the client brief to create bright open plan living accommodation that integrates with the garden to the rear and informs the contemporary architecture, form and material selection for the proposed extension.
Full architecture services from concept design, obtaining the necessary planning permission, developing the technical design and maintaining quality of workmanship through construction process on site. Reconfiguration of internal arrangement and external appearance to Edwardian dwelling. Retaining the character of the original property to the front whilst responding to the client brief to create bright open plan living accommodation that integrates with the garden to the rear and informs the contemporary architecture, form and material selection for the proposed extension.

























