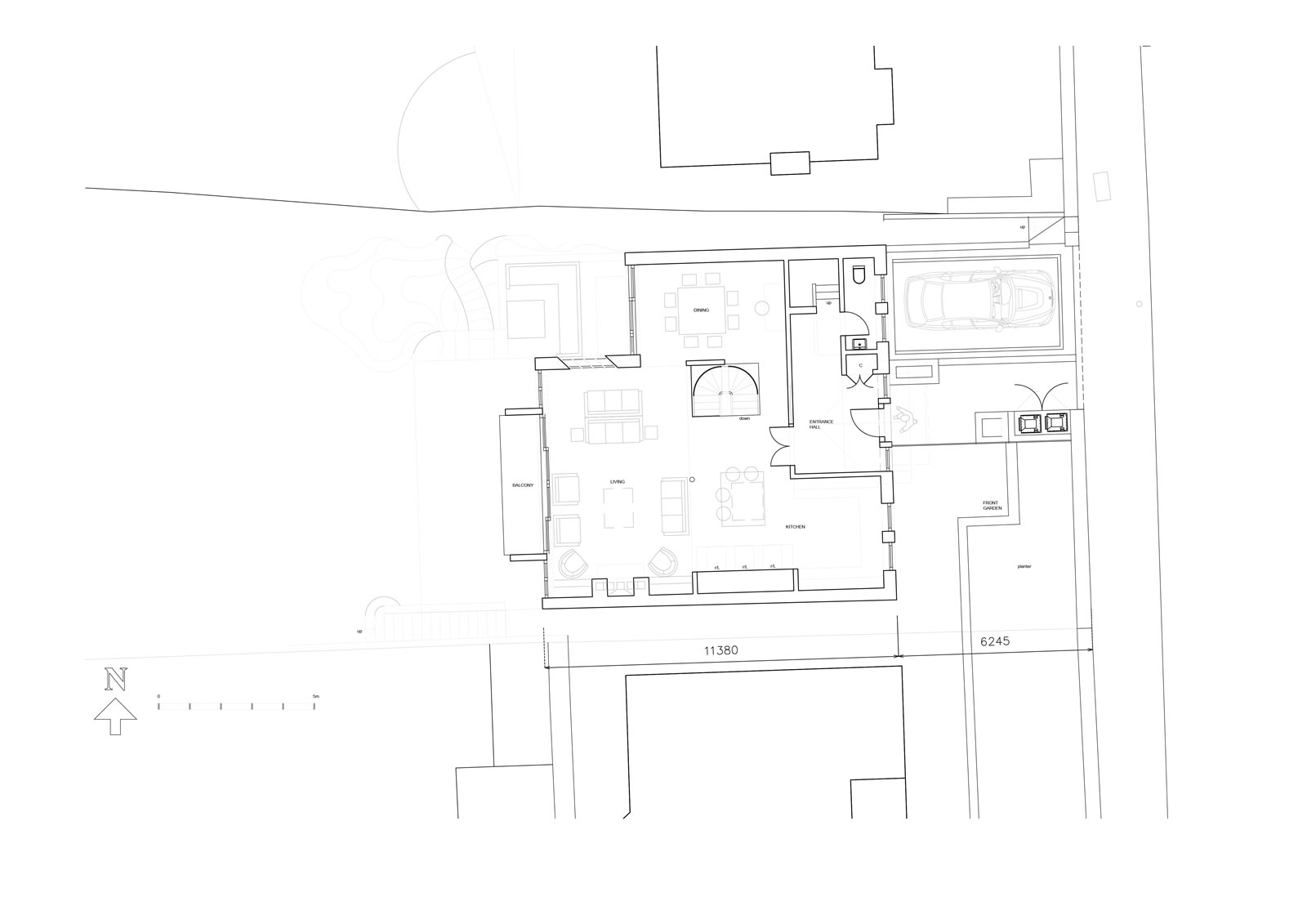
This sloping site is located in a primary road overlooking Guildford. The brief was to redevelop
the site and provide a new contemporary dwelling that would celebrate the unique location and
fantastic views with open plan living integrated over a range of floors. Planning permission has
been granted. The proposals are being developed to incorporate modern methods of construction
(insulated concrete form) to optimise the environmental credentials.
the site and provide a new contemporary dwelling that would celebrate the unique location and
fantastic views with open plan living integrated over a range of floors. Planning permission has
been granted. The proposals are being developed to incorporate modern methods of construction
(insulated concrete form) to optimise the environmental credentials.
This sloping site is located in a primary road overlooking Guildford. The brief was to redevelop
the site and provide a new contemporary dwelling that would celebrate the unique location and
fantastic views with open plan living integrated over a range of floors. Planning permission has
been granted. The proposals are being developed to incorporate modern methods of construction
(insulated concrete form) to optimise the environmental credentials.































