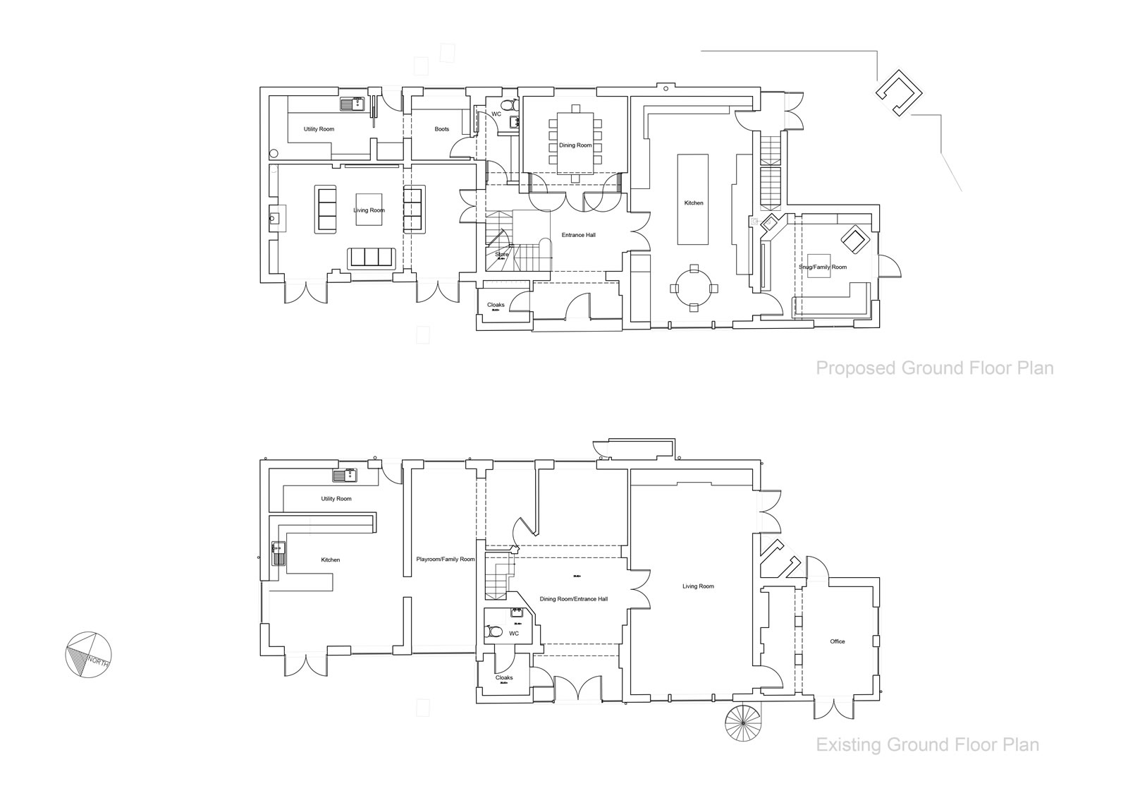
Proposals for two storey side/rear extension, loft conversion with front and rear dormer windows and refurbishment and reconfiguration of the internal arrangement including relocating kitchen and new internal staircases. Externally the proposals consolidate the existing distressed elevation characterised by sperate elements to create a harmony and focus to a new frontage end entrance to the dwelling.
Proposals for two storey side/rear extension, loft conversion with front and rear dormer windows and refurbishment and reconfiguration of the internal arrangement including relocating kitchen and new internal staircases. Externally the proposals consolidate the existing distressed elevation characterised by sperate elements to create a harmony and focus to a new frontage end entrance to the dwelling.






















