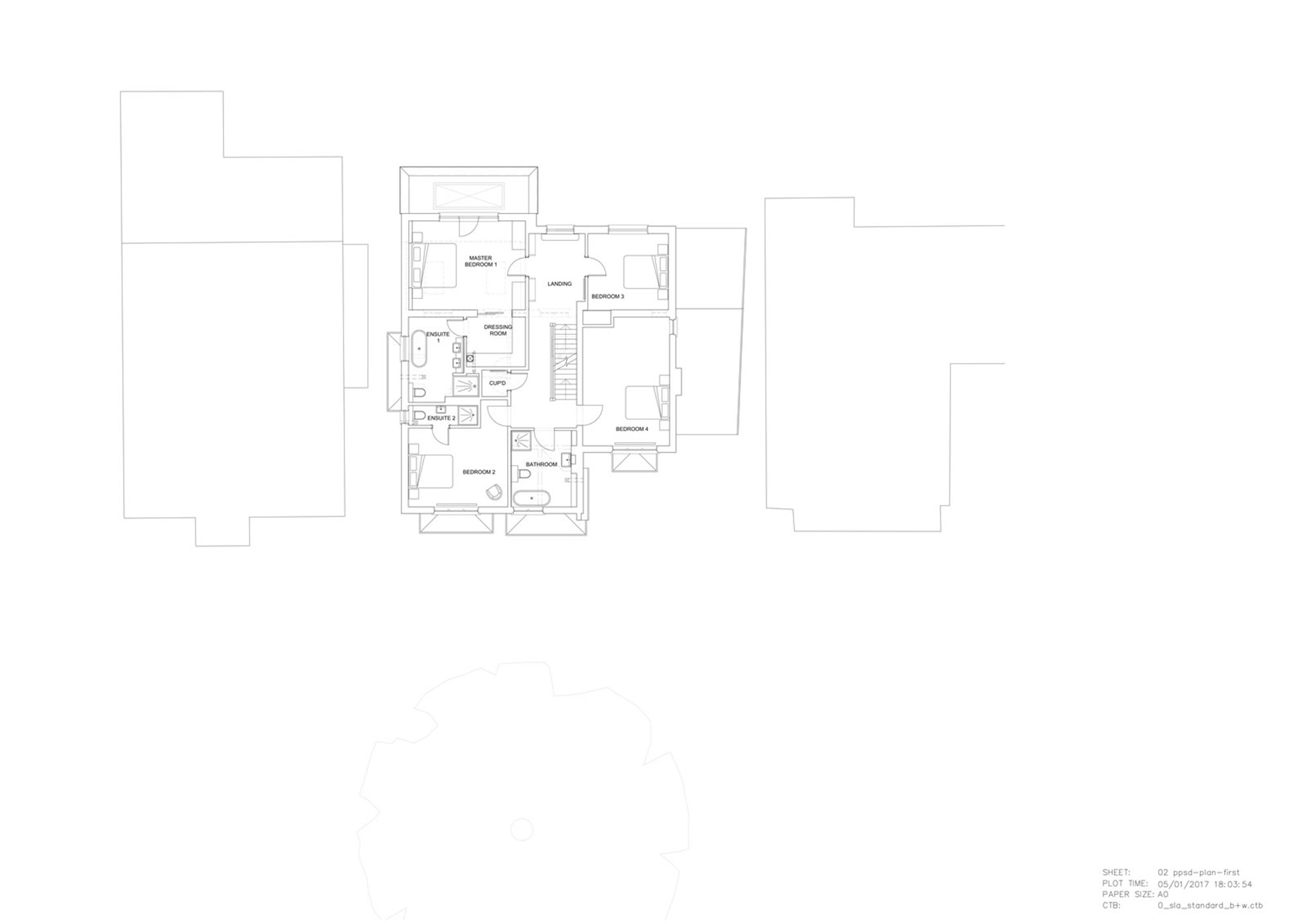
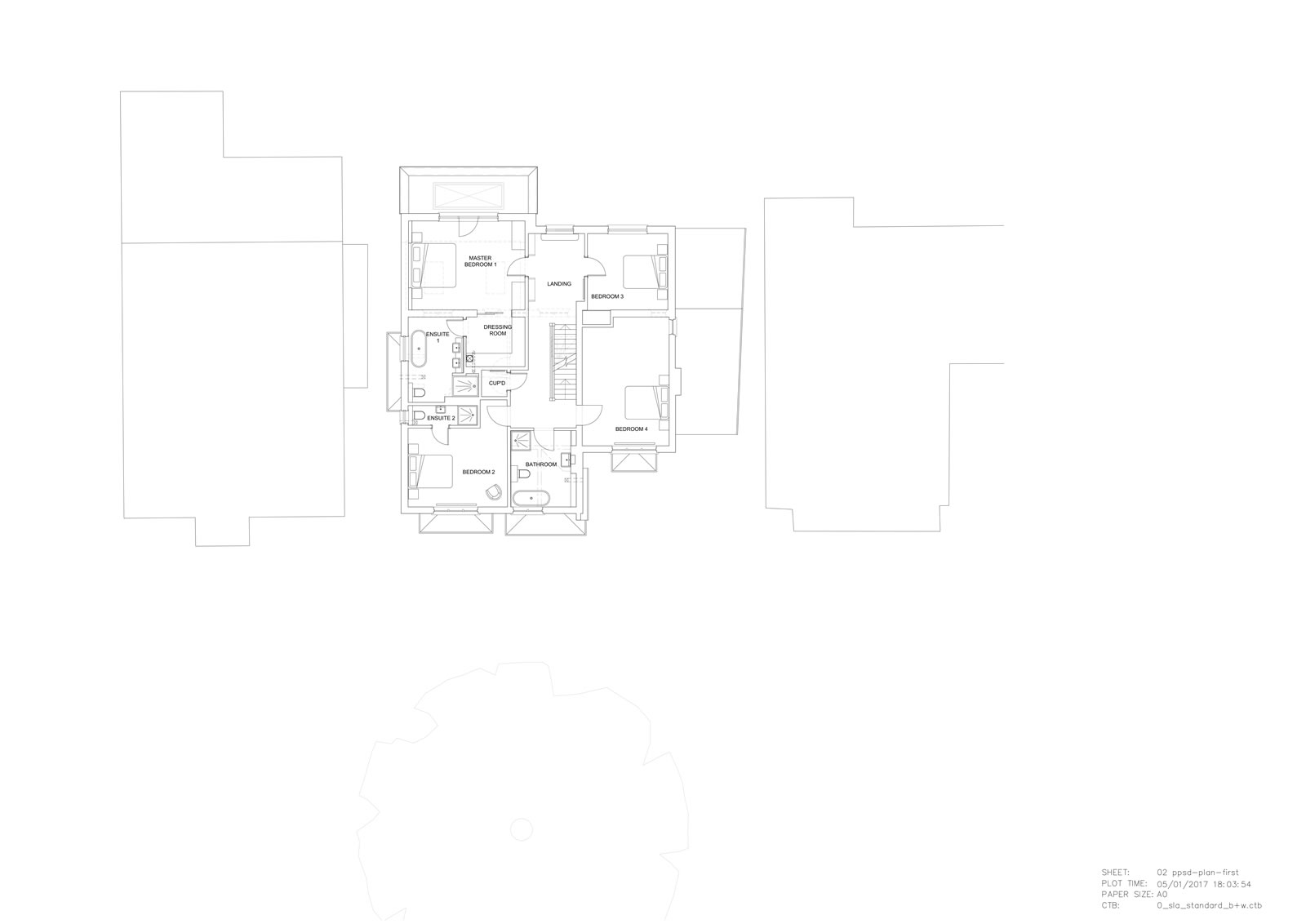
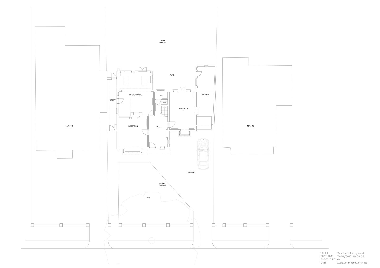
The existing detached house was in a poor condition and characterised externally as an assembly of disparate elements. The proposals extended the property to the rear and within the roof as well as reconfigured the internal arrangement to meet with contemporary family living. Externally, the proposals consolidate the elevations to create a more coherent and well-ordered building that enhance the house and setting with the conservation area.
The existing detached house was in a poor condition and characterised externally as an assembly of disparate elements. The proposals extended the property to the rear and within the roof as well as reconfigured the internal arrangement to meet with contemporary family living. Externally, the proposals consolidate the elevations to create a more coherent and well-ordered building that enhance the house and setting with the conservation area.























