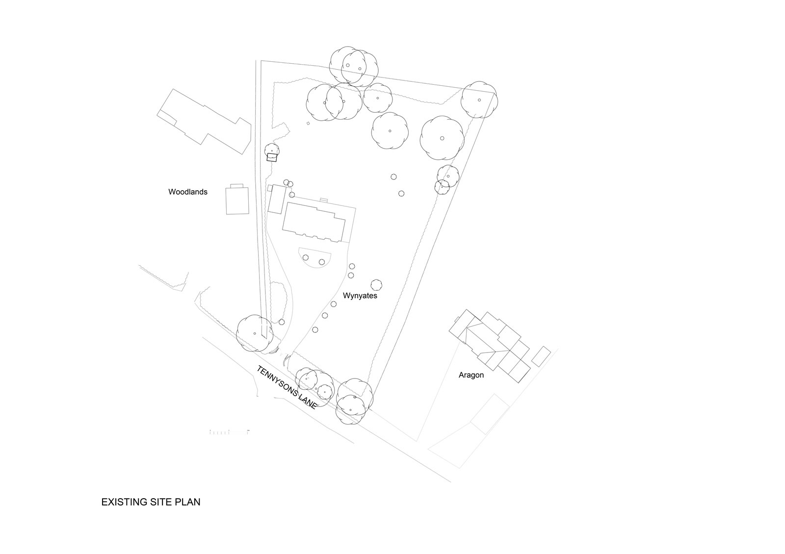
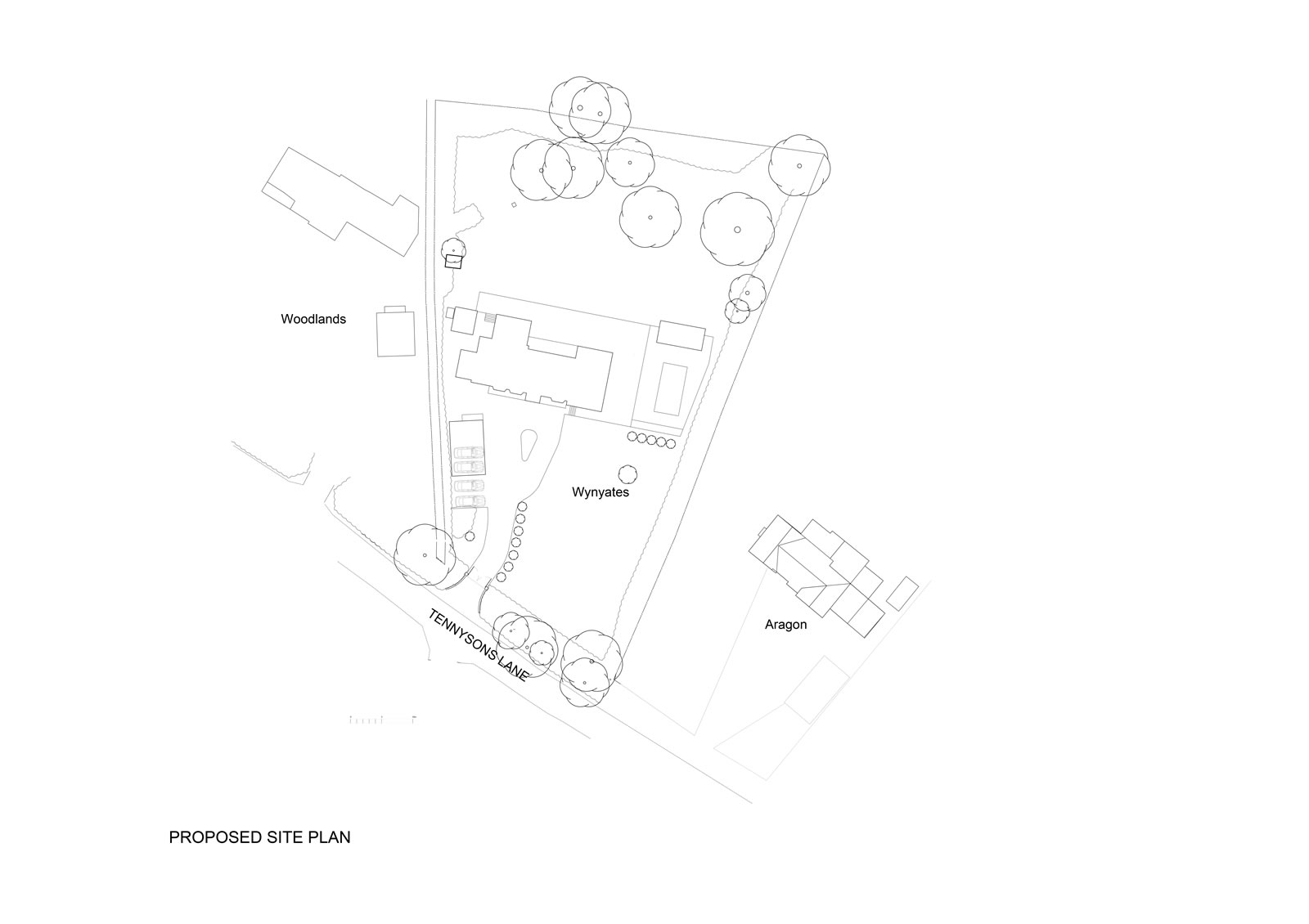
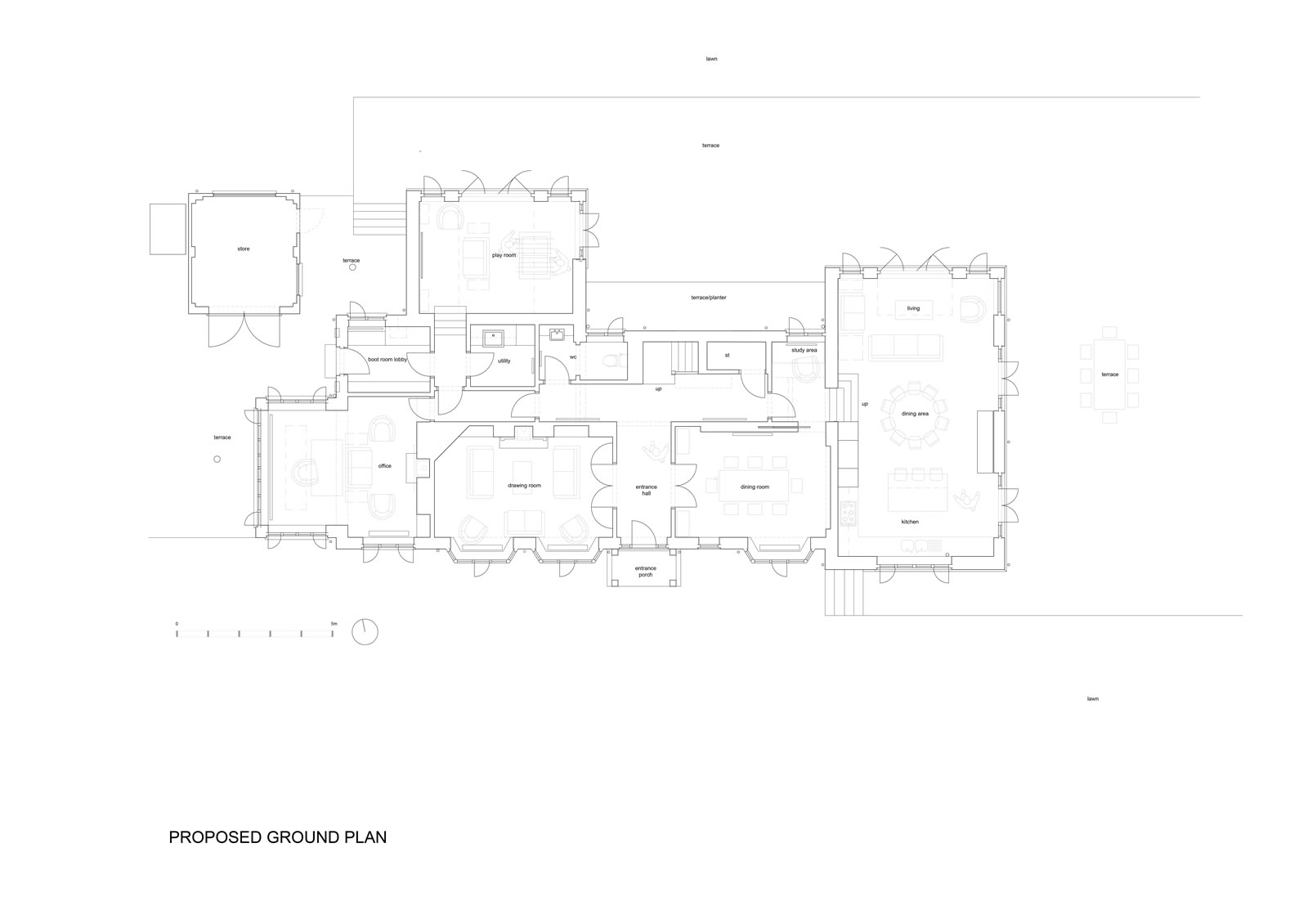
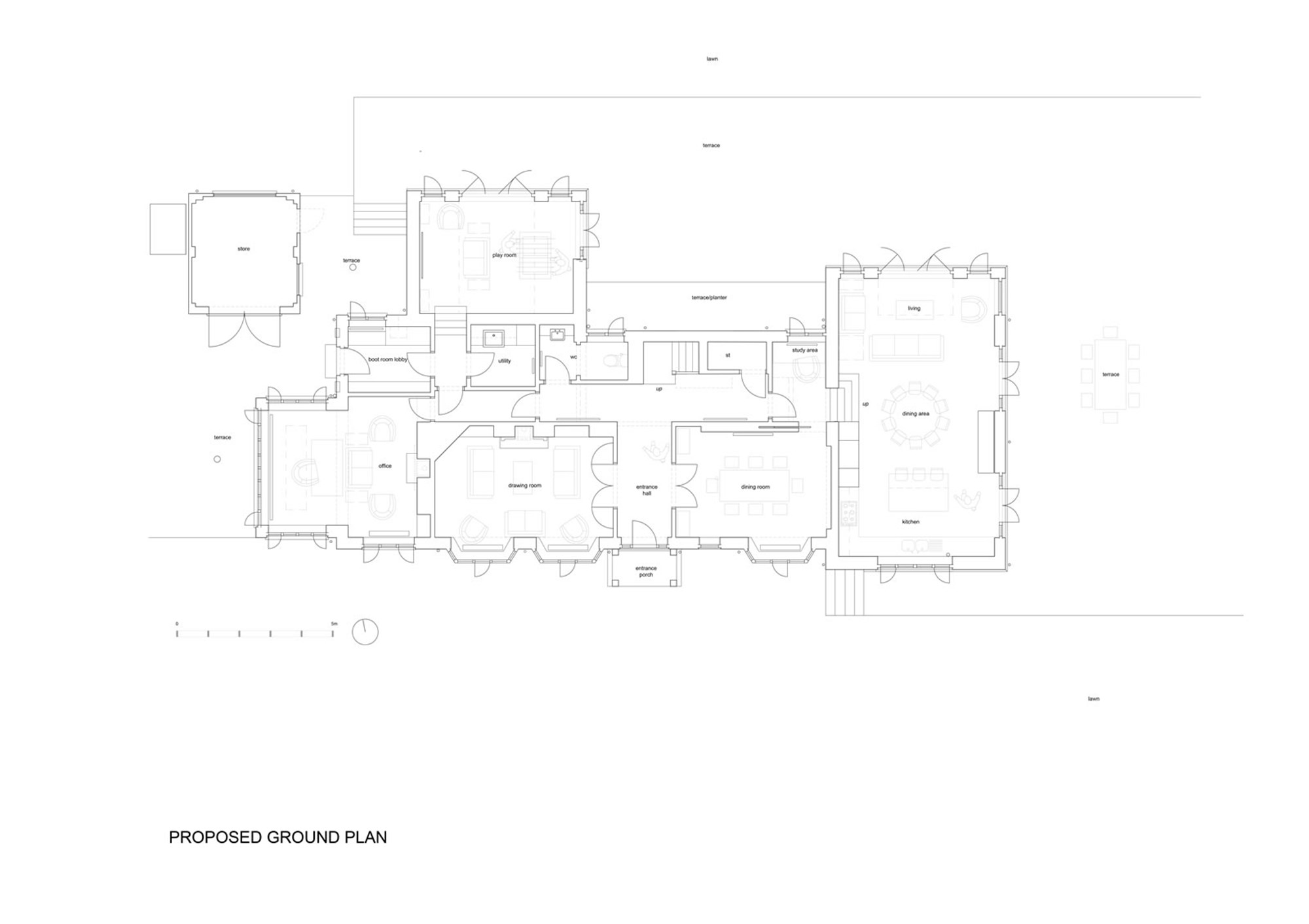
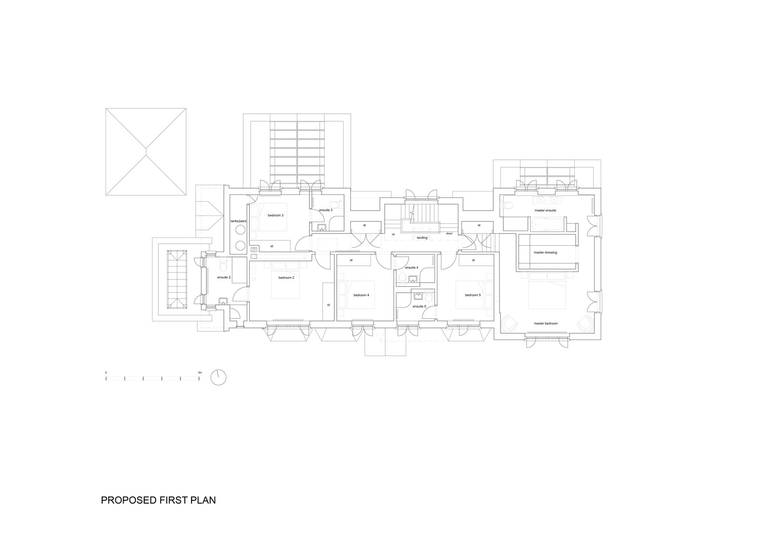
Strategic approach to obtaining planning permissions for two storey side and rear extension, single storey rear extension and side extension along with conversion of loft space to create additional sleeping accommodation. Reconfigurations of the internal space to position the open plan kitchen, dining and living space to benefit from the orientation of the property and maximise internal daylight levels. The proposals also included obtaining planning permissions for a two storey timber frame garage annex along with new swimming pool with timber frame pool house and new entrance gates. Concept design, planning and technical design generating circa 70% increase in existing area in area designated as Countryside beyond the Greenbelt and Area of Great Landscape Value.
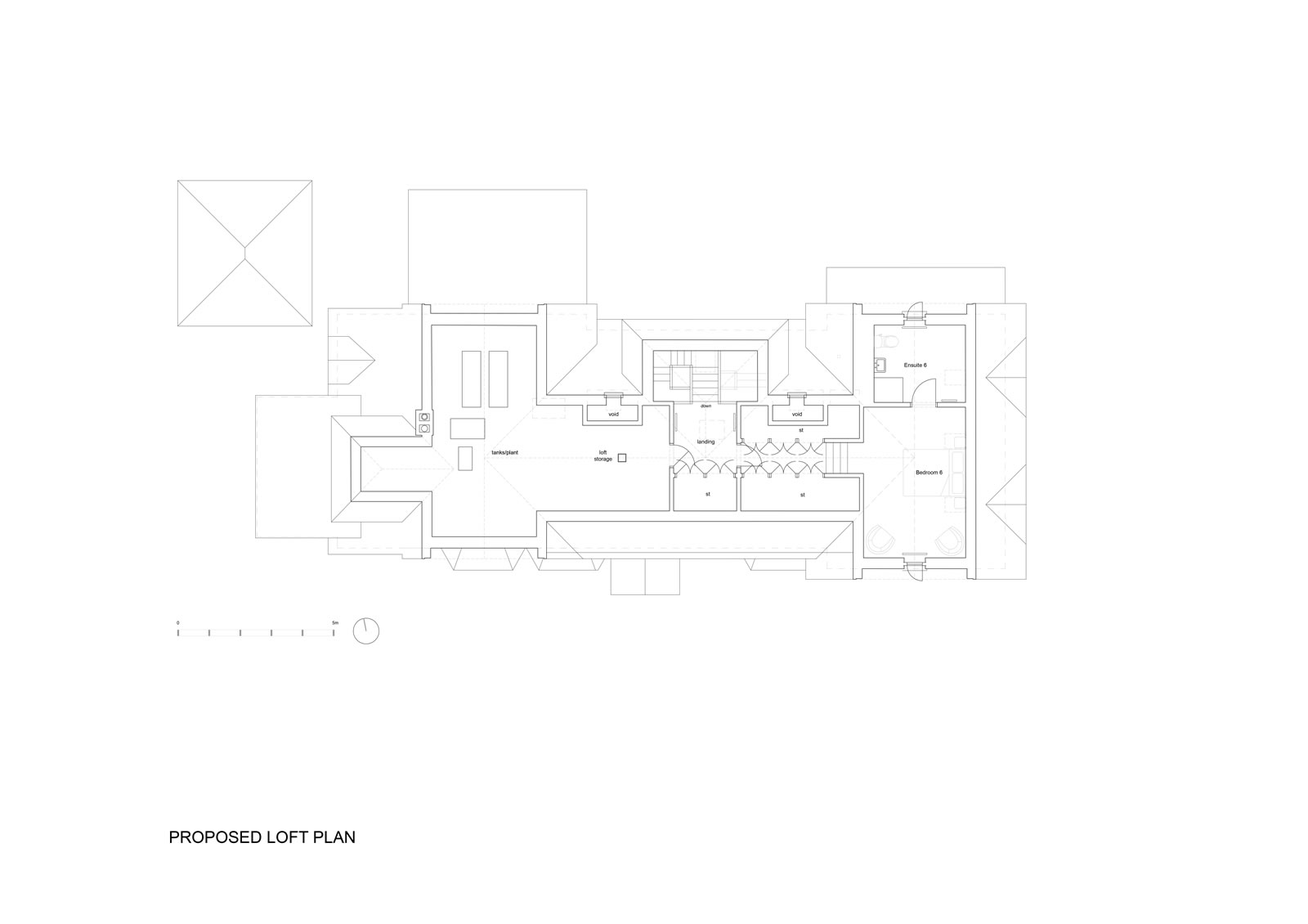
Strategic approach to obtaining planning permissions for two storey side and rear extension, single storey rear extension and side extension along with conversion of loft space to create additional sleeping accommodation. Reconfigurations of the internal space to position the open plan kitchen, dining and living space to benefit from the orientation of the property and maximise internal daylight levels. The proposals also included obtaining planning permissions for a two storey timber frame garage annex along with new swimming pool with timber frame pool house and new entrance gates. Concept design, planning and technical design generating circa 70% increase in existing area in area designated as Countryside beyond the Greenbelt and Area of Great Landscape Value.
























