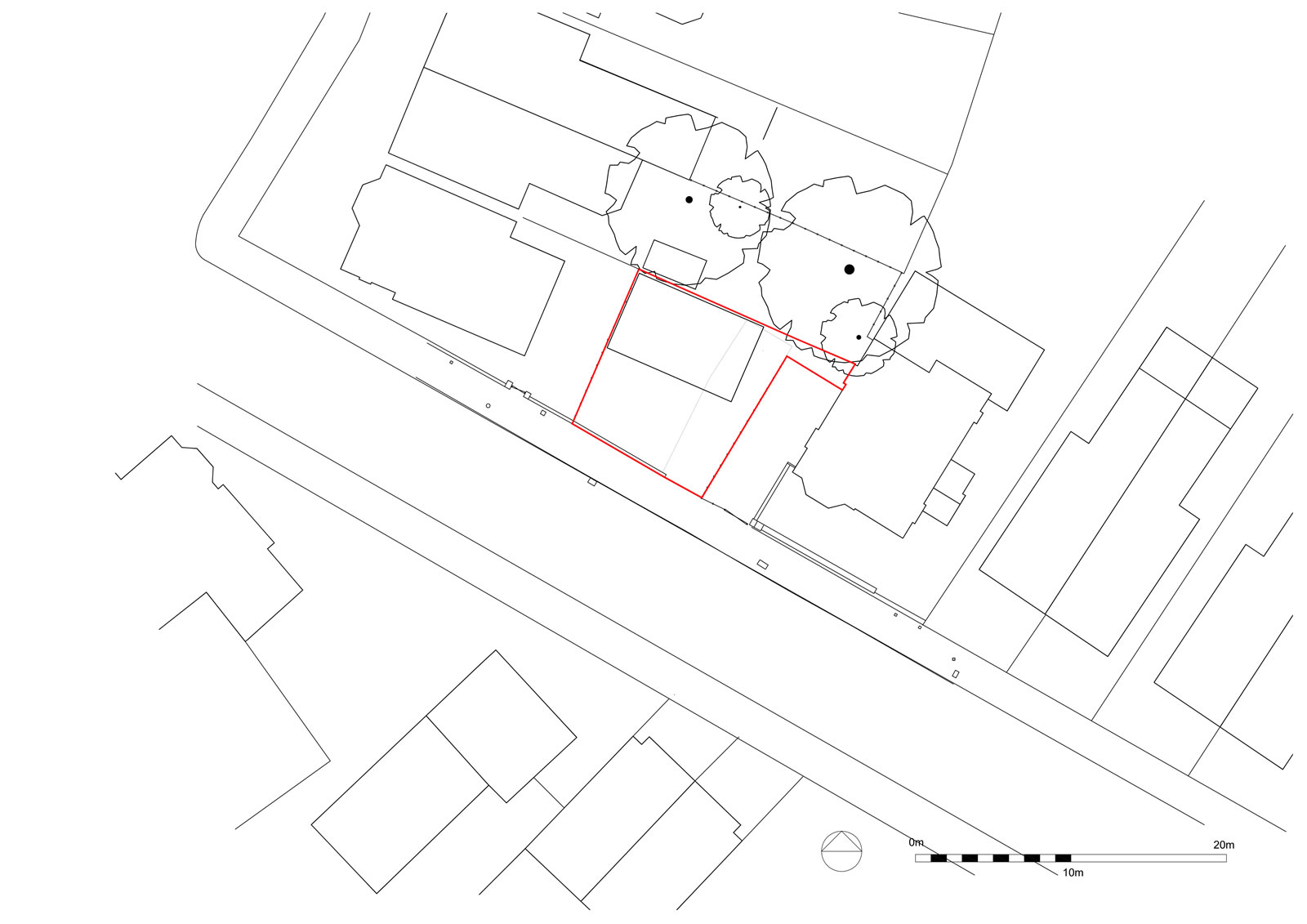
Proposed development of rear garden of a corner plot to create two new 2 bedroom dwellings. Informed by a detailed assessment of the existing context and surrounding character, scale and form, the innovative design approach, reflecting the scale of a single storey garage block to the rear garden, created new dwellings with central light shaft and contained front garden creating surplus levels of private amenity and good levels of natural daylight.
Proposed development of rear garden of a corner plot to create two new 2 bedroom dwellings. Informed by a detailed assessment of the existing context and surrounding character, scale and form, the innovative design approach, reflecting the scale of a single storey garage block to the rear garden, created new dwellings with central light shaft and contained front garden creating surplus levels of private amenity and good levels of natural daylight.



















