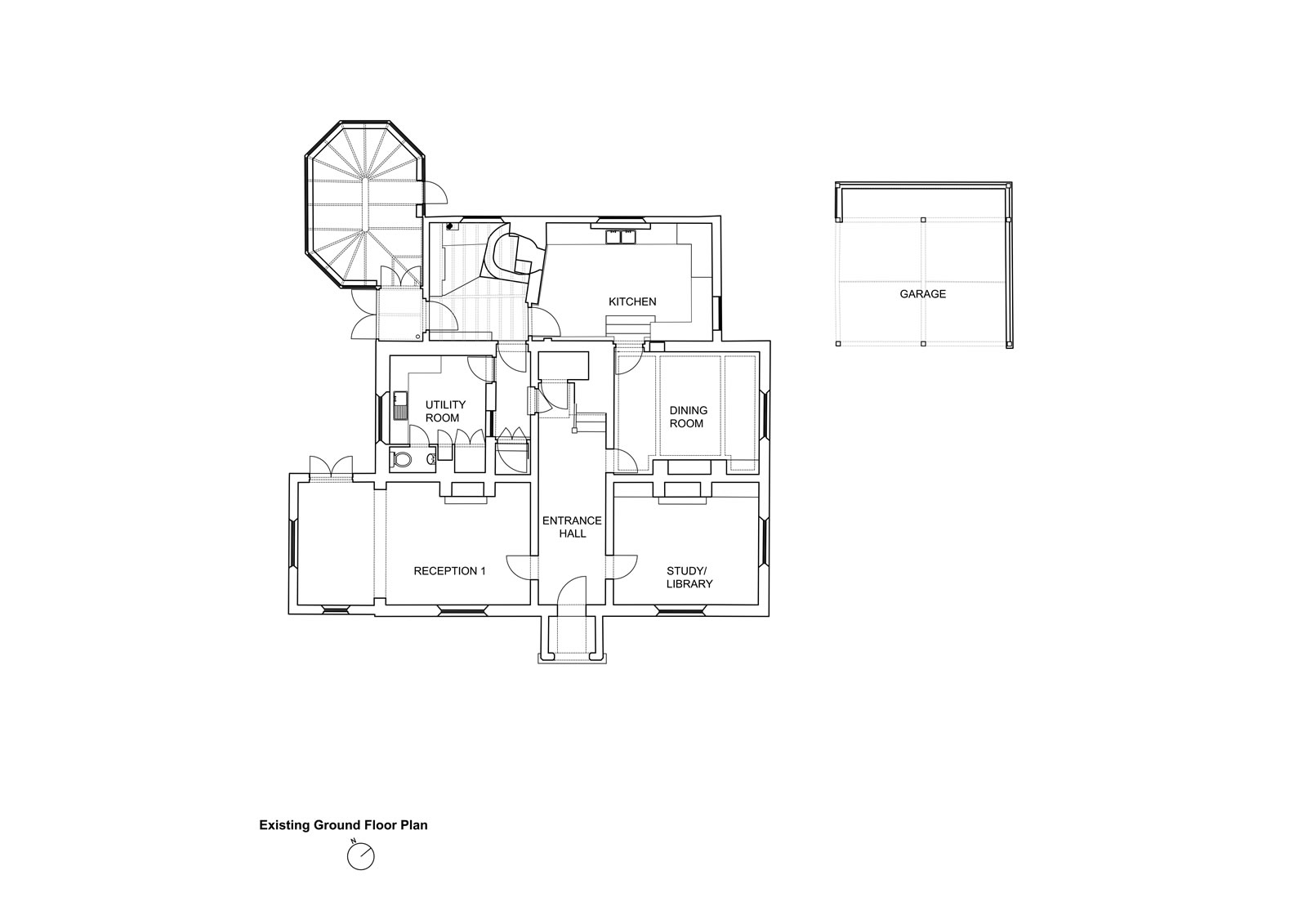
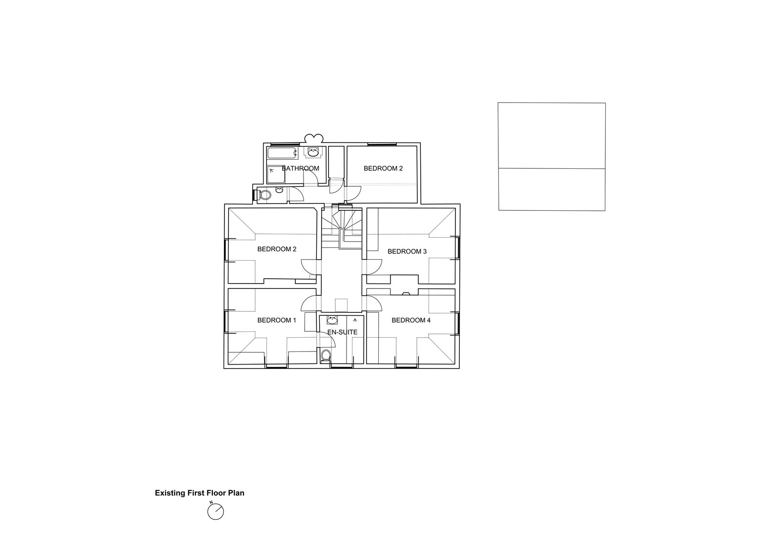
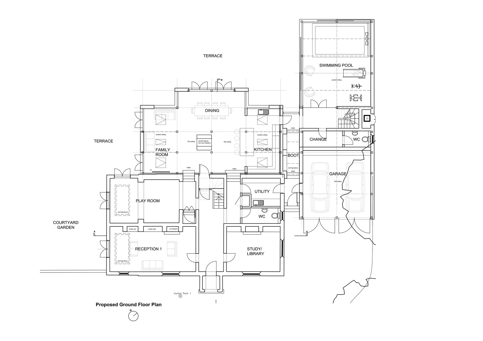
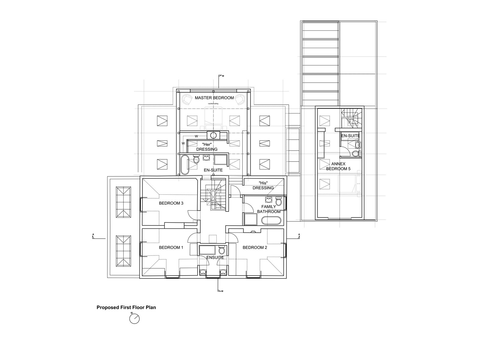
Remodelling internally and extending to the rear over two floors to create additional living space that opened into the garden with new master bedroom suite above. Ground floor links to new swimming pool and garage wing with annex accommodation above.
Ashstead House
Ashstead, Surrey
Private Client
Remodelling internally and extending to the rear over two floors to create additional living space that opened into the garden with new master bedroom suite above. Ground floor links to new swimming pool and garage wing with annex accommodation above.
Remodelling internally and extending to the rear over two floors to create additional living space that opened into the garden with new master bedroom suite above. Ground floor links to new swimming pool and garage wing with annex accommodation above.











