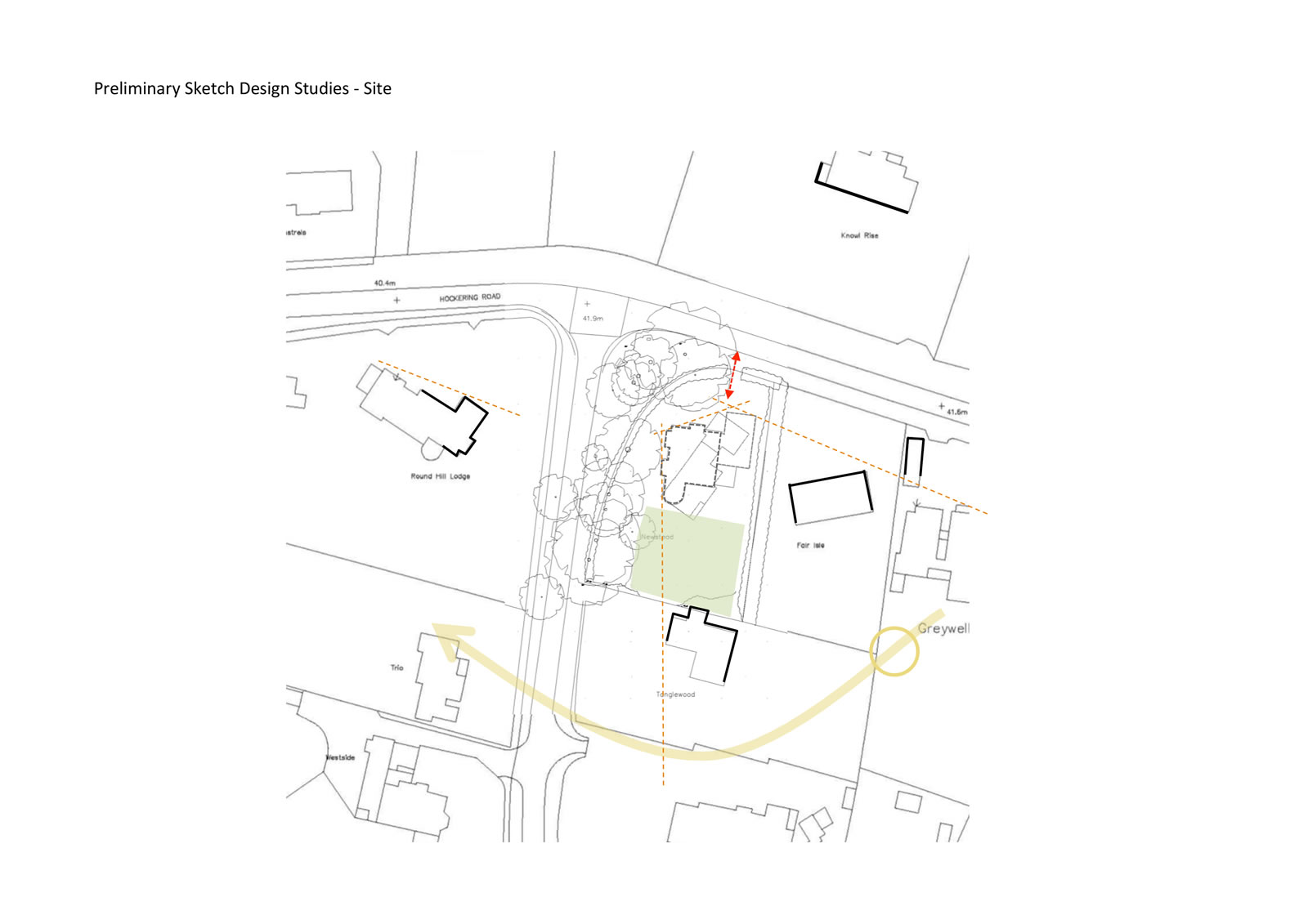
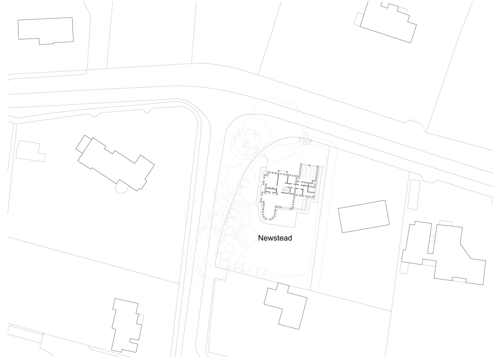
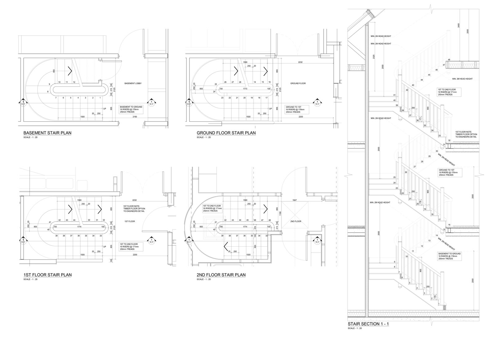
Upon the site, in a prominent location within a conservation area, permission was obtained to provide
a new build Arts & Crafts dwelling house, designed and detailed to integrated with the surrounding
context whilst also creating a high quality interior for modern family living. The property extended to
c5,000sqft arranged over four floors including a basement.
a new build Arts & Crafts dwelling house, designed and detailed to integrated with the surrounding
context whilst also creating a high quality interior for modern family living. The property extended to
c5,000sqft arranged over four floors including a basement.
Upon the site, in a prominent location within a conservation area, permission was obtained to provide
a new build Arts & Crafts dwelling house, designed and detailed to integrated with the surrounding
context whilst also creating a high quality interior for modern family living. The property extended to
c5,000sqft arranged over four floors including a basement.



















